Cactus Flower Transitional Housing | 2025
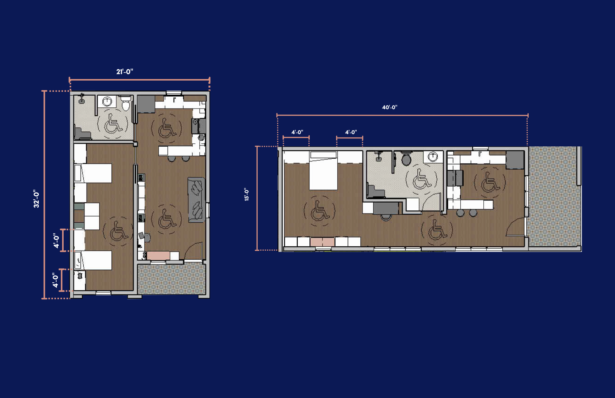
Cactus Flower Transitional Housing is a collaborative group project completed with two other team members for a multifamily-use transitional housing community. The proposal reimagines an existing bank as a community center, with a series of interlocking “pod” homes extending behind it. These pod residences are intentionally arranged to foster connection, visibility, and a strong sense of community—balancing privacy with shared support.
Designed as a sanctuary for women and children escaping domestic violence, Cactus Flower Transitional Housing offers more than safety; it provides a nurturing environment for healing, growth, and new beginnings. Rooted in the belief that resilience can bloom even in the harshest conditions, the name Cactus Flower symbolizes beauty, strength, and hope emerging from adversity.